测量功能
选择/更改测量功能
在功能菜单中,可找到以下功能:
长度测量
面积测量
持续测量
体积测量
间接距离测量
间接高度测量
双重间接高度测量
间接长度测量
梯形测量
墙壁面积测量
放样功能
倾斜度测量/数字式水平仪
- 按压按键
,以打开功能菜单。
- 通过按键
或按键
选择所需的测量功能。
- 按压按键
或按键
,以确认选择。
集成的辅助功能 

集成在测量仪中的辅助功能可对各项测量功能/测量过程提供详细的动画短片。
- 打开功能菜单。
- 通过按键
或通过按键
选择所需的功能,然后按压按键
。
- 动画短片可展示所选测量功能的详细操作步骤。
- 按压按键
,以暂停动画短片,或继续播放动画短片。
- 按压按键
或
,以显示下一步或上一步。
长度测量 
- 按压按键
,以打开功能菜单。
- 选择长度测量
,并通过按键
确认选择。
- 短促按压按键
,以接通激光。
- 按压按键
,以触发测量。
- 测量值在显示屏下方的结果行(a)中显示。
- 如要进行下一次测量,请重复上述步骤。
如果先后进行了多次长度测量,便会在测量值行(h)中显示最近几次测量的结果。最后一个测量值显示在显示屏下方,倒数第二个测量值显示在其上方,然后依次类推。
面积测量 
- 按压按键
,以打开功能菜单。
- 选择面积测量
,并通过按键
确认选择。
- 短促按压按键
,以接通激光。
- 按压按键
,以触发首次测量,例如一个房间的长度。
- 按压按键
,以触发第二次测量,例如一个房间的宽度。
两次测量结束后会自动计算和显示面积。结果在结果行(a)中显示。各个测量值位于测量值行(h)中。
持续测量 
在持续测量时,测量值会不断更新。例如,您可以从一堵墙出发,移动所需的距离,这样将随时可以读取当前的距离。
- 按压按键
,以打开功能菜单。
- 选择持续测量
,并通过按键
确认选择。
- 短促按压按键
,以接通激光。
- 移动测量仪,直至所需的距离显示在结果行中。
- 您可以短促按压按键
,以中断持续测量。
- 再次按压按键
,以继续持续测量。
当前测量值显示在结果行(a)中,最大和最小的测量值显示在测量值行(h)中。
持续测量在5分钟后自动关闭。
体积测量 
- 按压按键
,以打开功能菜单。
- 选择体积测量
,并通过按键
确认选择。
- 短促按压按键
,以接通激光。
- 按压按键
,以触发首次测量,例如一个房间的长度。
- 按压按键
,以触发第二次测量,例如一个房间的宽度。
- 按压按键
,以触发第三次测量,例如一个房间的高度。
三次测量结束后会自动计算和显示体积。结果在结果行(a)中显示。各个测量值位于测量值行(h)中。
间接距离测量
间接距离测量用于确定无法直接测量的距离,例如有障碍物阻挡了光路或者没有目标面可以充当反射体时。该测量方法只适用于垂直方向。任何水平方向的偏差都会导致测量错误。
间接距离测量始终不及直接距离测量精确。由使用情况决定,测量误差可能比直接距离测量时大。为了提高测量精度,我们建议使用三脚架(附件)。
- 使用三脚架时,请注意所设置的基准面。 参见 选择基准面
在各个单一测量之间激光保持接通。
间接距离测量有4种测量功能可用,通过这些相应的功能可以确定不同的线段。
间接高度测量
双重间接高度测量
间接长度测量
梯形测量
间接高度测量 

通过间接高度测量,可以通过测量线段1,以确定线段AB。测量仪从角度
和线段1计算出所求的高度AB。
在激光和待测量的线段的夹角成直角时,才能够测量出正确的结果。
- 按压按键
,以打开功能菜单。
- 选择间接距离测量
,并通过按键
确认选择。
- 选择间接高度测量
,并通过按键
确认选择。
- 短促按压按键
,以接通激光。
- 将测量仪置于下部测量点B的高度。
- 将测量仪倾斜,令激光对准上部测量点A。
- 按压按键
,以触发测量。
测量结束后会自动计算高度,并显示在结果行(a)中。线段1和角度
的测量值位于测量值行(h)中。
双重间接高度测量

通过双重间接高度测量,可以通过测量线段1和2,以确定线段AB。测量仪从角度
和线段1和2计算出所求的高度AB。
进行该测量时,建议使用三脚架。
- 按压按键
,以打开功能菜单。
- 选择间接距离测量
,并通过按键
确认选择。
- 选择双重间接高度测量
,并通过按键
确认选择。
- 短促按压按键
,以接通激光。
- 将测量仪倾斜,令激光对准上部测量点A。
- 按压按键
,以触发首次测量。
- 将测量仪倾斜,令激光对准下部测量点B。同时不得更改测量仪的位置。
- 按压按键
,以触发第二次测量。
测量结束后会自动计算高度,并显示在结果行(a)中。线段1、2和角度
的测量值位于测量值行(h)中。
间接长度测量
- 按压按键
,以打开功能菜单。
- 选择间接距离测量
,并通过按键
确认选择。
- 选择间接长度测量
,并通过按键
确认选择。
- 将测量仪置于所求线段AB的起点A上。
- 将测量仪倾斜,令激光对准终点B所在的平面。
- 按压按键
,以触发测量。

通过间接长度测量,可以通过测量线段1,以确定线段AB。测量仪从角度
和线段1计算出所求的长度AB。
测量结束后会自动计算长度,并显示在结果行(a)中。线段1和角度
的测量值位于测量值行(h)中。
梯形测量 

通过梯形测量,可以确定诸如屋顶坡面的长度。您可以通过依次测量线段1、2和3,以确定线段AB。测量仪从线段1、2和3计算出所求的线段AB。
- 请注意,线段3的测量精确地从线段1的终点开始,并且线段1和2之间以及线段1和3之间是一个直角。
- 按压按键
,以打开功能菜单。
- 选择间接距离测量
,并通过按键
确认选择。
- 选择梯形测量
,并通过按键
确认选择。
- 短促按压按键
,以接通激光。
- 通过按键
测量线段1。
- 通过按键
测量线段2。
- 通过按键
测量线段3。
测量结束后会自动计算线段AB,并显示在结果行(a)中。线段1、2和3的测量值位于测量值行(h)中。
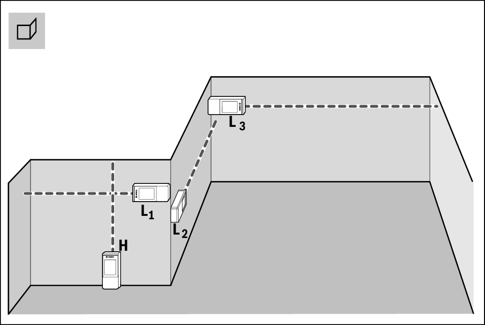
墙壁面积测量 

墙壁面积测量是用来计算高度相同的数个单一墙面的总面积。正确面积计算的前提条件是,第一个测得的长度(在本例中是空间高度H)对于所有子面积都相同。在图示的例子中要测定空间高度H相同但长度L不同的多个墙面的总面积。
- 按压按键
,以打开功能菜单。
- 选择墙壁面积测量
,并通过按键
确认选择。
- 请与长度测量时一样测量空间高度H。
- 测量值在上部的测量值行中显示。激光保持接通状态。
- 然后测量第一堵墙的长度L1。
- 面积自动计算出来并在结果行中显示。最后一个长度测量值位于下部的测量值行中。激光保持接通状态。
- 现在测量第二堵墙的长度L2。
您可以测量任意多个其它长度LX,它们将自动相加,然后乘以高度H。
测量值行(h)中显示的各个测量值被加到长度L1上。两个长度的总和(显示在中部的测量值行(h)中)被乘以存储的高度H。总面积值在显示屏下方的结果行(a)中显示。
放样功能 
- 在放样功能中,基准面就是显示屏上所显示的标记。基准面不是测量仪的边缘。

放样功能重复测量某个定义的长度(线段)。这些长度可以传递到某个表面上,例如能够将材料剪切成相同长度的工件或建立干墙式墙架结构。可调节的最小长度为0.1米,最大长度为50米。

- 按压按键
,以打开功能菜单。
- 选择放样功能
,并通过按键
确认选择。
- 按压按键
,以设置所需的长度。
- 通过按键
或按键
设置所需的长度。
- 按住按键
或按键
,可以较大的步距更改长度。
- 按压按键
,以启动放样功能,然后缓慢地从起点离开。
- 测量仪连续测量到起点的间距。同时显示定义的长度以及当前的测量值。下部或上部箭头指示到下一个或上一个标记的最小距离。
- 在连续测量时,您也可以通过按压并按住按键
将一个测量值规定为定义的长度。

左侧的系数表明,定义的长度已经达到多少次。显示屏上侧面的绿色箭头指示达到一个用于标记的长度。

如果参考值超出显示屏,则红色箭头和红色字样指示实际值。
倾斜度测量/数字式水平仪 
数字式水平仪用于检测一个目标(例如洗衣机、冰箱等)的水平或垂直定位。倾斜度测量用于测量(例如楼梯、栏杆,以及装配家具时或敷设管道时等)的斜度或倾角。当更改测量仪的位置时,测量仪便会自动在两项功能之间切换。
- 按压按键
,以打开功能菜单。
- 选择倾斜度测量/数字式水平仪
,并通过按键
确认选择。

测量仪的底面用作数字式水平仪的基准面。
- 如要使用数字式水平仪,请将测量仪的背面置于所要测量的表面上。
- 您可以按压按键
,以固定测量值。
- 如果倾角超过3度,则显示屏中的球呈红色亮起。

测量仪的左侧面用作倾斜度测量的基准面。测量过程中如果显示开始闪烁,说明测量仪过度侧向侧倾。
- 如要使用倾斜度测量,请将测量仪的侧面置于要测量其倾斜度的对象上。
- 您可以按压按键
,以固定测量值。

